Al 23 jaar de grootste gratis online marktplaats!
Berichten
Account
+
Plaats advertentie
Alle rubrieken
Agrarisch
Antiek en Kunst
Audio, TV en Foto
Auto's
Auto-onderdelen
Auto diversen
Boeken
Beauty en Gezondheid
Bedrijfspanden
Caravans en Kamperen
Cd's en Dvd's
Computers en Software
Contacten en Berichten
Diensten en Vakmensen
Dieren en Toebehoren
Doe-het-zelf en Verbouw
Erotiek
Erotieklijnen
Fietsen en Brommers
Hobby en Vrije tijd
Huis en Inrichting
Huizen en Kamers
Kinderen en Baby's
Kleding | Dames
Kleding | Heren
Motoren
Muziek en Instrumenten
Paranormaal
Postzegels en Munten
Sieraden, Tassen en Uiterlijk
Spelcomputers, Games
Sport en Fitness
Telecommunicatie
Tickets en Kaartjes
Tuin en Terras
Vacatures
Vakantie
Verzamelen
Watersport en Boten
Witgoed en Apparatuur
Zakelijke goederen
Diversen
Alle afstanden...
< 5 km
< 10 km
< 15 km
< 25 km
< 50 km
< 75 km
< 100 km
< 150 km
Zoeken
Rubrieken
Huizen en Kamers
Te Koop
Appartementen en Flats
Bedrijfspanden
Bestaand Benelux
Bestaand Buiten Europa
Bestaand Europa
Eengezinswoningen
Garageboxen
Grondkavels
Half vrijstaand
Hoekwoningen
Kangoeroewoning
Kantoorruimte
Kavels Benelux
Kavels Buiten Europa
Kavels Europa
Kluswoningen
Landhuizen
Nieuw Benelux
Nieuw Buiten Europa
Nieuw Europa
Parkeerplaatsen
Recreatiewoningen
Starterswoningen
Studio's
Tussenwoningen
Vrijstaand
Woonboerderij
Te Huur
Appartementen en Flat's
Bedrijfspanden
Eengezinswoningen
Hoekwoningen
Kamers
Kantoorruimte
Starterswoningen
Studentenhuisvesting
Tussenwoningen
Twee onder een kap
Vrijstaand
Woningruil naar groter
Woningruil naar kleiner
Woningruil overig
Diensten | Koop
Hypotheekadviseurs
Interieuradviseurs
Makelaars
Overige | Te Huur
Recreatiewoningen
Woongemeenschap
Overige | Te Huur
Overige | Te Koop
Bouw projecten
Woonboten
Overige | Te Koop
Rubrieken
Rubrieken
×
Home
-
Huizen en Kamers
-
Appartementen en Flat's
- Appartement Carnapstraat in Amsterdam
Je link hier plaatsen
Appartement Carnapstraat in Amsterdam
sinds
16-12-2025 18:49:28
Kopieer link
prijs: € 2455
Locatie
:
Nijmegen
(Gelderland)
Website
:
Bezoek website
Kenmerken
Beschrijving
Indeling
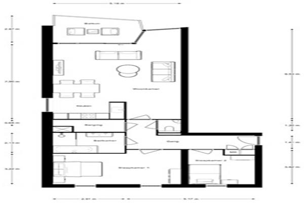
Het appartement is bereikbaar via de centrale entree van het complex, waar zich ook de lift bevindt. Via de voordeur kom je in de ruime gang die toegang geeft tot alle vertrekken.
De royale woonkamer is licht en ruim opgezet en vormt samen met de open keuken een prettige leefruimte. Dankzij de grote raampartijen is er veel natuurlijke lichtinval, wat bijdraagt aan een open en aangename sfeer.
De keuken is praktisch ingedeeld en voorzien van diverse inbouwapparatuur, waardoor koken hier zowel comfortabel als efficiënt is. Aansluitend is er voldoende ruimte voor een eethoek, ideaal voor gezellige diners of thuiswerken.
Vanuit de woonkamer is er toegang tot het balkon op het westen, waar je in de middag en avond heerlijk van de zon kunt genieten.
Het appartement beschikt over twee goed bemeten slaapkamers, geschikt als master bedroom, logeerkamer of thuiskantoor. De badkamer is netjes afgewerkt en voorzien van ligbad en wastafel. Daarnaast is er een separaat toilet en een praktische interne berging voor extra opslag of wasruimte.
Op -1 beschikt de woning nog over een extra berging van ca. 6 m2. Daarnaast is het ook mogelijk om een parkeerplaats te huren in de onderliggende parkeergarage.
Geschikt voor twee woningdelers;
Kenmerken: Kopen in Nijmegen
Klik hier en bezoek de website voor meer informatie
Advertentienummer: 120157600
Meld aan Aanbodpagina