Appartement Klaprozenweg in Amsterdam


sinds 16-1-2026 18:48:49


prijs: € 1858
Locatie : Nijmegen  (Gelderland)
Website : Bezoek website

Kenmerken

Beschrijving

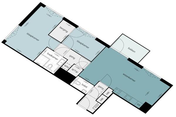
Dit appartement is ideaal voor wie op zoek is naar een ruime en moderne woning. Dankzij de grote ramen geniet je van veel natuurlijk licht. De woning is helemaal: de keuken en badkamer zijn volledig ingericht.
De keuken is voorzien van een inductiekookplaat, afzuigkap, ingebouwde koelkast met vriesvak en geïntegreerde vaatwasser. Er zijn twee slaapkamers met grote ramen, een badkamer met douche, wastafel en toilet, en een aparte berging inclusief plek voor de wasmachine.
Kenmerken: Kopen in Nijmegen



Klik hier en bezoek de website voor meer informatie
Advertentienummer: 120206844 Meld aan Aanbodpagina